Ficha
Oportunidad Única: Local Comercial de Obra Nueva en el Corazón de Cunit
Cunit - REF. 1747

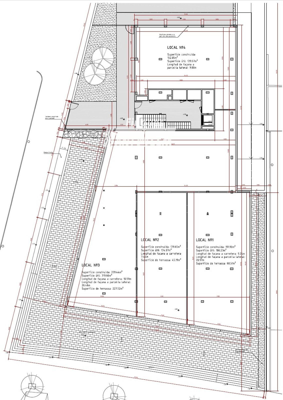
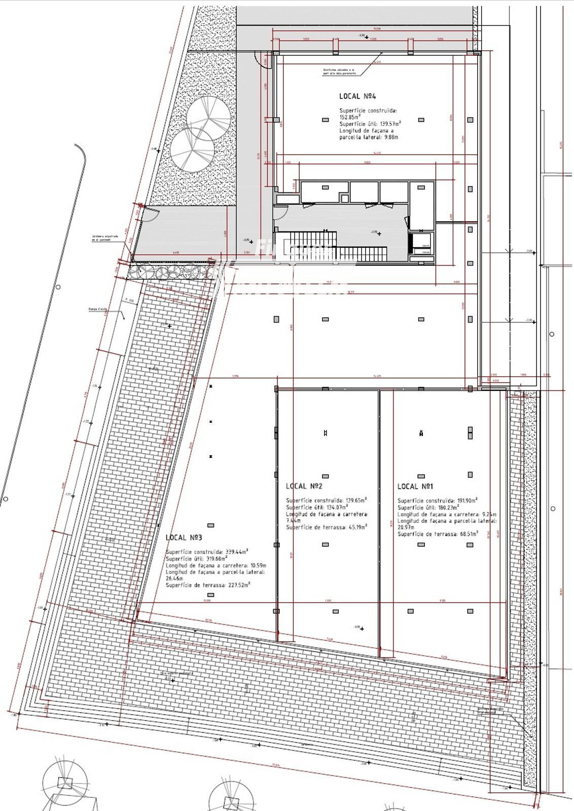
139,65 m2
venta: 248.000 €
Descripción

Oportunidad Única: Local Comercial de Obra Nueva en el Corazón de Cunit

¿Buscas el lugar perfecto para materializar tu proyecto empresarial? Presentamos este espectacular local comercial en obra nueva, ubicado estratégicamente en la Carretera General C-32, la arteria principal y de mayor visibilidad de Cunit.

Características Principales: El local se entrega en formato de obra civil, permitiéndote personalizar cada rincón y decorar desde cero según la identidad de tu marca.

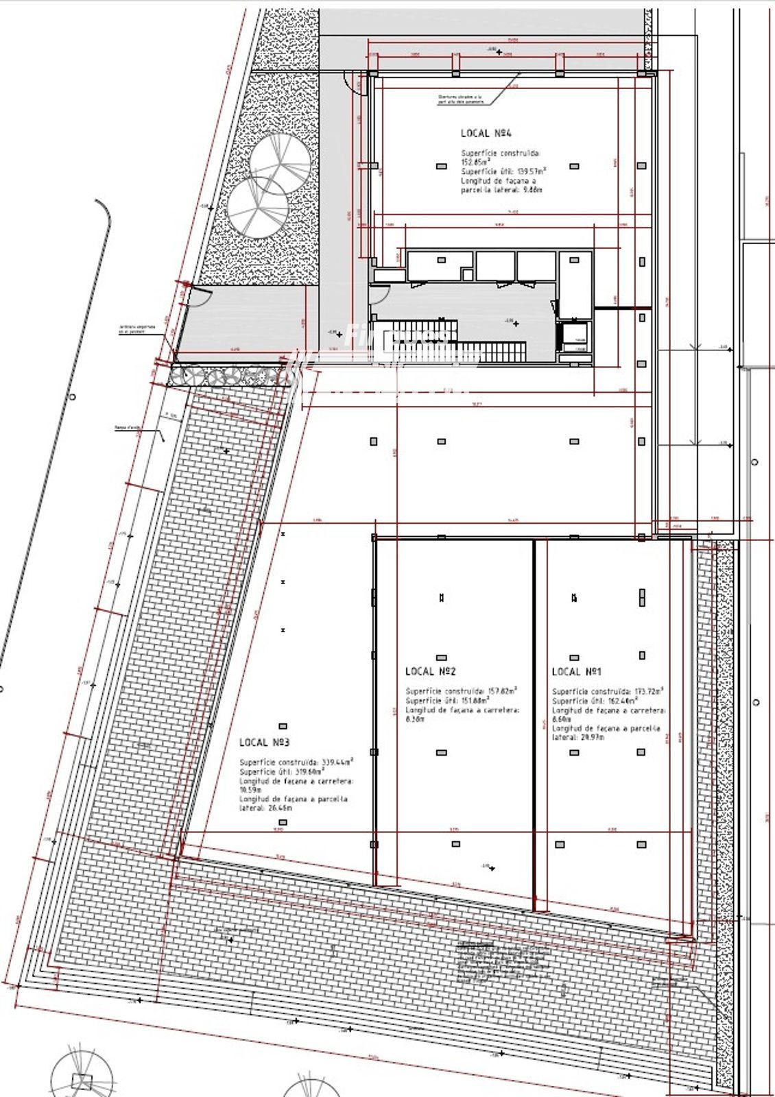
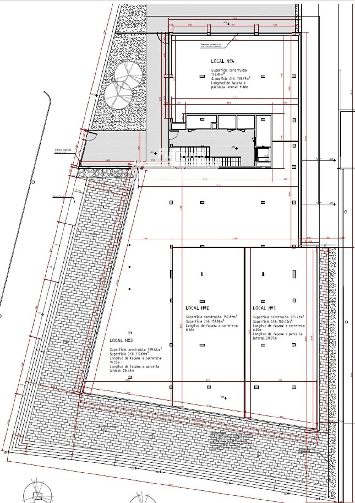
Superficie Amplia: Dispone de 139,65 m² construidos (134,07 m² útiles), ofreciendo un espacio diáfano y versátil.

Gran Fachada: Sus 7,44 metros de fachada lineal son el escaparate ideal para captar la atención del constante flujo peatonal y de vehículos.

Flexibilidad Total: Al ser una entrega en bruto, ahorras en costes de demolición y puedes diseñar la distribución, instalaciones y acabados a tu medida.

Cunit: Un En clave Estratégico en la Costa Dorada Ubicado en la comarca del Baix Penedès, Cunit no es solo un destino vacacional, sino un municipio con una comunidad activa y en crecimiento durante todo el año.

Ubicación y Conectividad: Situado en el límite entre Barcelona y Tarragona, goza de una comunicación excelente a través de la C-32 y la AP-7. Es un punto de paso obligado que garantiza una alta exposición comercial.

Entorno Dinámico: El municipio combina la tranquilidad de sus playas de arena fina con un centro urbano moderno que ofrece todos los servicios: colegios, centros médicos y una variada oferta gastronómica.

Potencial de Crecimiento: Cunit ha experimentado un aumento constante de población residente, lo que se traduce en una demanda creciente de nuevos servicios, comercios y espacios profesionales.

Ideal para: Franquicias, centros de estética, clínicas especializadas, despachos profesionales o restauración con diseño de autor.

Características
Precio Venta 248.000 €
Precio/m² 1.776
Año de construcción 2026
Construidos 139,65 m2
Útiles 134,07 m2
Calificación Energética Exento
Escalas de eficiencia



Contáctanos

Si deseas más información sobre esta propiedad, por favor, rellena el formulario.

 Sí, he leído y/o acepto las Condiciones de uso y la Política de privacidad
Inmobiliaria en Segur de Calafell
REGISTRE D'AGENTS IMMOBILIARIS DE CATALUNYA 3689

CONTÁCTANOS

Passeig Marítim 233-234 Baixos
43882 Segur de Calafell