Ficha
Oportunidad de inversión: estructura de vivienda unifamiliar en construcción
Albinyana - REF. 1634

212 m2

6

2
venta: 120.000 €
Descripción
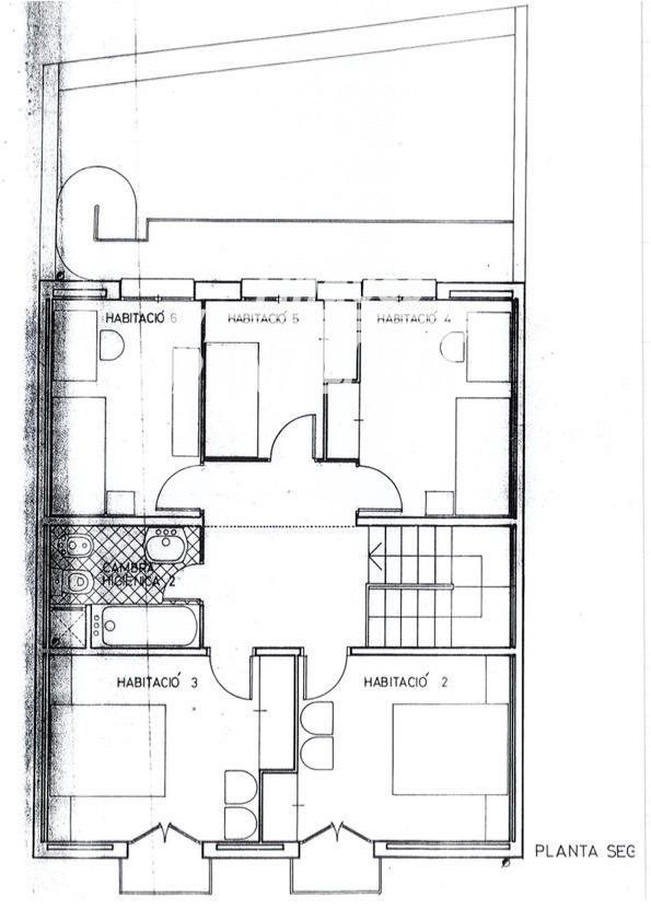
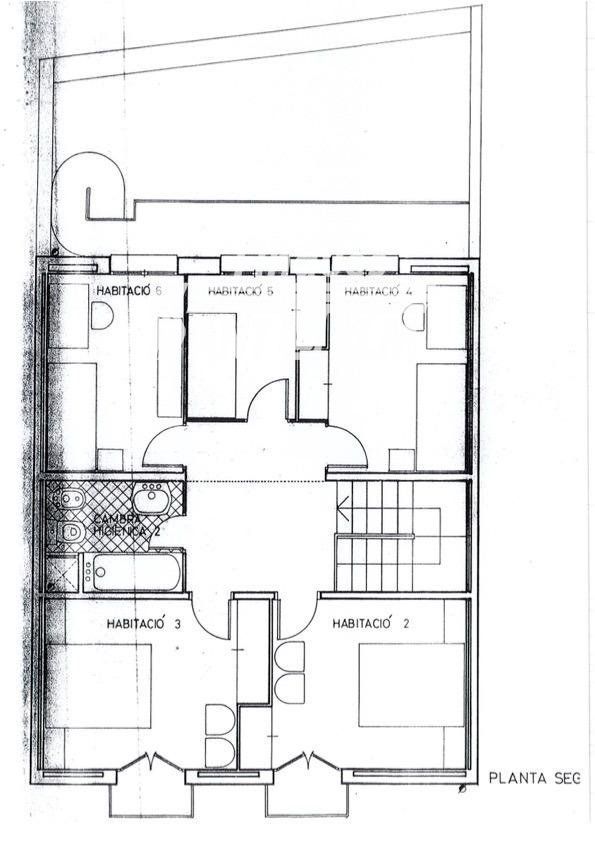
Se ofrece una estructura de vivienda unifamiliar entre medianeras en una ubicación estratégica, ideal para constructores e inversores que busquen finalizar una obra con gran potencial de rentabilidad. El proyecto cuenta con los muros de carga y la cimentación ya ejecutados, ahorrando tiempo y recursos...Descripción del proyecto:.-Superficie total construida: 212 m² distribuidos en tres plantas..-Distribución prevista:.-Planta baja: garaje amplio, zona de acceso y un baño..-Planta primera: salón-comedor espacioso, cocina independiente, un dormitorio y baño completo..-Planta segunda: cinco dormitorios (tres dobles y dos individuales) y un baño..-Diseño versátil: posibilidad de personalización según las necesidades del comprador..-Detalles adicionales: terrazas en las plantas superiores y buena iluminación natural...Ventajas del proyecto:.-Ahorro significativo: Estructura y elementos básicos ya construidos..-Ubicación estratégica: Zona con alta demanda residencial..-Flexibilidad: Ideal para adaptarlo a vivienda familiar o para inversión...Una excelente oportunidad para completar una obra con gran potencial de revalorización. Contáctanos para obtener más información sobre el proyecto y visitas.
Características
Precio Venta 120.000 €
Precio/m² 566 €/m²
Año de construcción 1985
Construidos 212 m2
Útiles 148 m2
Dormitorios 6
Baños 2
Estado En construcción
Calificación Energética (G) VER
Escalas de eficiencia


-
-

Contáctanos

Si deseas más información sobre esta propiedad, por favor, rellena el formulario.

 Sí, he leído y/o acepto las Condiciones de uso y la Política de privacidad
Inmuebles similares:
 
126.000 €
Ref. 1613  240 m2  4  2

Se venden dos casas de pueblo para rehabilitar íntegramente, situadas en Carrer Roda nº 4 y nº 6, en El Vendrell, en una ubicación céntrica y bien comunicada, ideal tanto para proyecto residencial como para inversión.

La primera vivienda cuenta con 96 m2 construidos y la segunda con 188 m2, ofreciendo en conjunto un gran potencial de desarrollo. Las propiedades se encuentran totalmente para reformar, lo que permite diseñar los espacios a medida y adaptarlos a cualquier necesidad.

Gracias a la superficie y a la normativa urbanística de la zona, existe la posibilidad de:

Rehabilitar ambas casas de forma independiente.

Unificarlas en una única vivienda de mayores dimensiones.

Derribar las construcciones actuales y edificar un nuevo edificio de planta baja + 3 plantas, opción especialmente atractiva para promotores o inversores.

Además, existe la opción de adquirir los dos inmuebles esquineros colindantes, lo que permitiría edificar la totalidad del chaflán, aumentando de forma notable la edificabilidad, la visibilidad y el valor del proyecto final.

Ubicadas en una calle tranquila del casco urbano, con todos los servicios a pie: comercios, colegios, transporte público y zonas de interés del centro de El Vendrell.

Una excelente oportunidad de inversión en una de las zonas con mayor proyección del municipio, con múltiples posibilidades de aprovechamiento urbanístico.

 
110.000 €
Ref. 1609  92 m2  3  1

Casa de pueblo a reformar, reformala a tu gusto, situada en zona tranquila entre El Vendrell y las pederes de Santa Oliva, ahora solo queda que le des rienda a tu imaginacion, la visitamos??, llamanos!!

Inmobiliaria en Segur de Calafell
REGISTRE D'AGENTS IMMOBILIARIS DE CATALUNYA 3689

CONTÁCTANOS

Passeig Marítim 233-234 Baixos
43882 Segur de Calafell