Mapa   Ficha
Donde el horizonte se convierte en hogar
Segur De Calafell (Segur de Calafell) - REF. 1378
venta: 160.000 €
Descripción

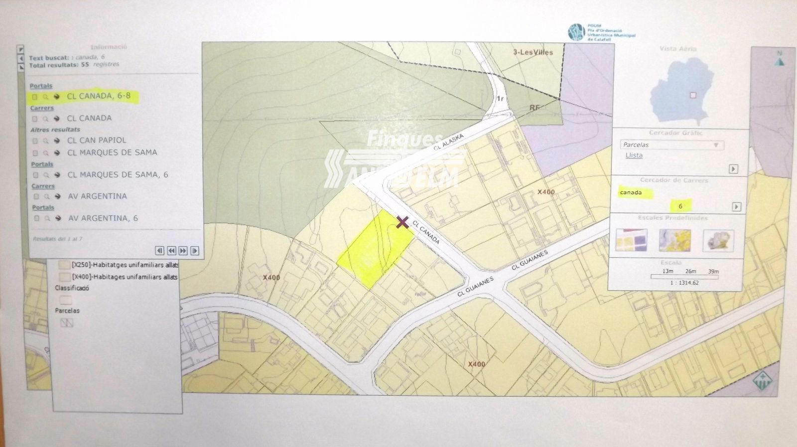
Presentamos una parcela excepcional de 2.091 m² con viabilidad para la construcción de 5 chalets unifamiliares. Este activo destaca por su ubicación privilegiada, ofreciendo vistas panorámicas infinitas y una atmósfera de absoluta privacidad lejos del bullicio urbano.

La propiedad combina el encanto de un refugio natural con la funcionalidad de una zona totalmente consolidada. La excelencia de su infraestructura —que incluye todos los servicios urbanos y conectividad avanzada— garantiza una ejecución de obra ágil y una calidad de vida inmediata.

Un lienzo en blanco para inversores que buscan rentabilidad o familias que aspiran a un retiro de paz con todas las garantías de confort.

Características
Precio Venta 160.000 €
Precio/m² 77 €/m²
I.B.I. 746 €
Útiles 2.091 m2
Parcela 2.091 m2
Luz
Agua
Ubicación
Escalas de eficiencia



Tu agente
Jordi Alari
Contáctanos

Si deseas más información sobre esta propiedad, por favor, rellena el formulario.

 Sí, he leído y/o acepto las Condiciones de uso y la Política de privacidad
Inmuebles similares:
 
130.000 €
Ref. 1581
Parcela en venta en El Vendrell, Luz y Agua.
 
180.000 €
Ref. 1584
Parcela en venta en El Vendrell, Luz y Agua.
Inmobiliaria en Segur de Calafell
REGISTRE D'AGENTS IMMOBILIARIS DE CATALUNYA 3689

CONTÁCTANOS

Passeig Marítim 233-234 Baixos
43882 Segur de Calafell