Ficha
Piso en venta en Calafell, Tarragona (Calafell Poble)
REF. 1733

6,98 m2

1

1

1

2
venta: 150.000 €
Descripción

Pisos de obra nueva en Calafell Pueblo desde 150.000 € de 1 dormitorio hasta 270.000 € los de 3 dormitorios.


DEPARTAMENTO M2 ÚTILES M2 TERRAZA HAB. BAÑOS PRECIO

Sot –1 Pk 1 X X X X 9.000 €

Sot –1 Pk 2 X X X X 9.000 €

Sot –1 Pk 3 X X X X 9.000 €

Sot –1 Pk 4 X X X X 9.000 €

Sot –1 Pk 5 + tras. X X X X 13.500 €

Sot -1Pk 6 + tras. X X X X 13.500 €

Trastero 1 P. b. X X X X 4.500 €

Trastero 2 P. b. X X X X 4.500 €

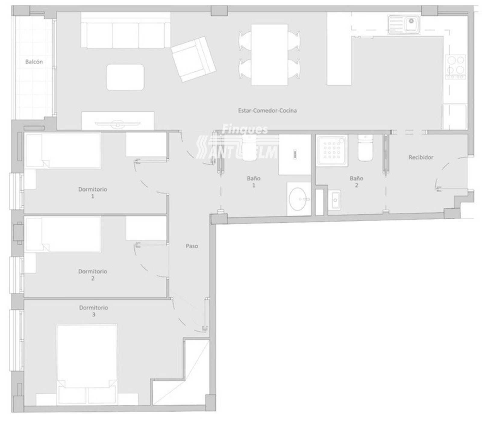
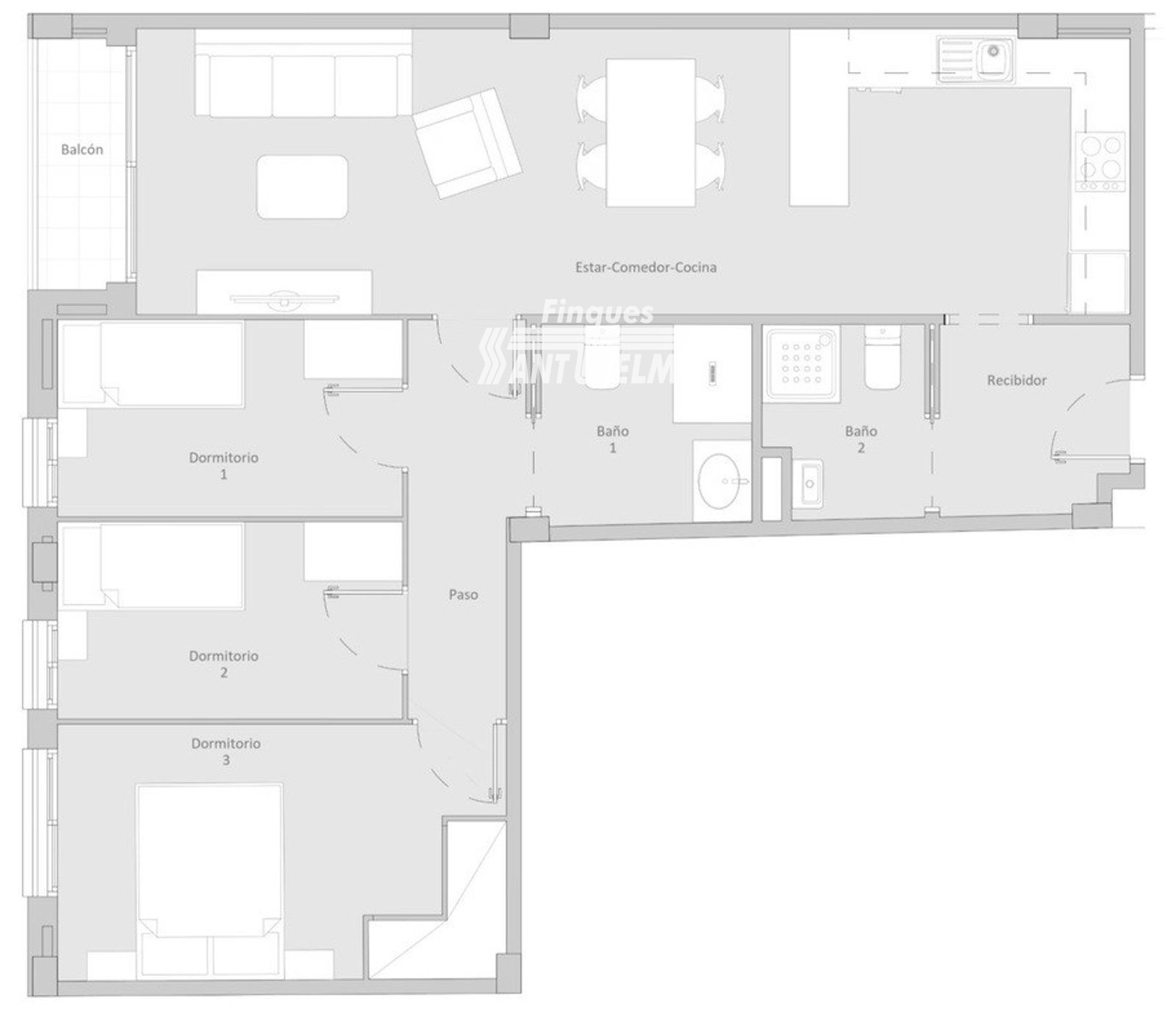
Bajos 1ª + Pk + Tras. 77,25 m2 71,68 m2 3 1 270.000 €  3 dormitorios y 1 baño

Bajos 2ª + Pk + Tras. 73,54 m2 70,75 m2 3 1 265.000 €  3 dormitorios y 1 baño

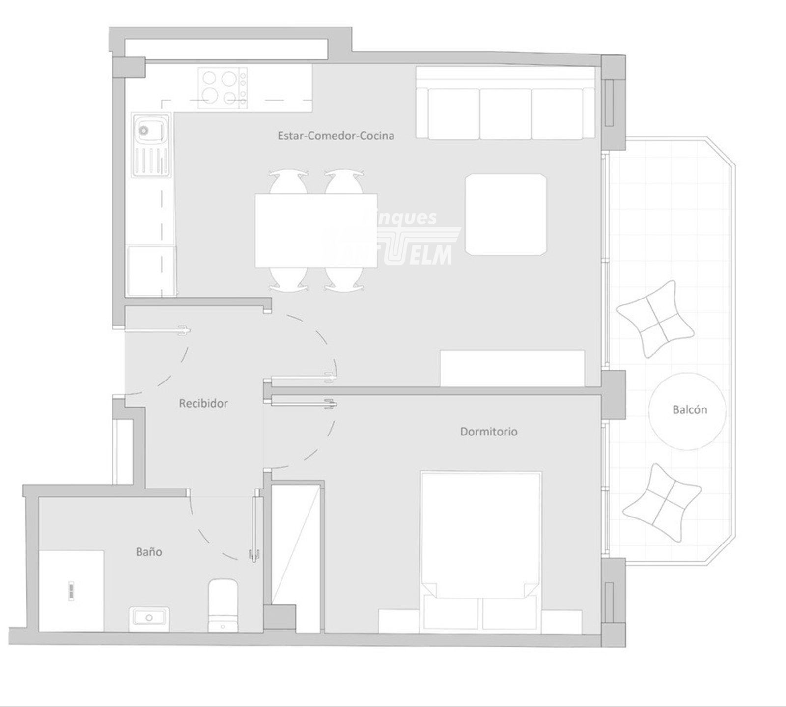
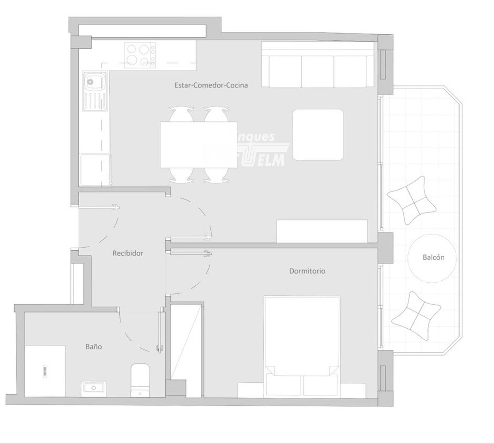
1º 1ª + Pk + Tras. 41,09 m2 31,03 m2 1 1 160.000 €  1 dormitorio y 1 baño

1º 2ª + Pk + Tras. 70,17 m2 16,76 m2 3 2 250.000 €  3 dormitorios y 2 baños

2º 1ª + Pk + Tras. 40,66 m2 6,98 m2 1 1 150.000 €  1 dormitorio y 1 baño

2º 2ª + Pk + Tras. 70,17 m2 30,12 m2 3 2 255.000 €  3 dormitorios y 2 baños

Características
Precio Venta 150.000 €
Año de construcción 2026
Útiles 40,66 m2
Dormitorios 1
Baños 1
Trastero
Terraza
Altura/Planta 2
Estado En construcción
Tipo de suelo Cerámico
Garaje
Calificación Energética En trámite
Escalas de eficiencia



Tu agente
David Romeu Mercader (Venta)
Contáctanos

Si deseas más información sobre esta propiedad, por favor, rellena el formulario.

 Sí, he leído y/o acepto las Condiciones de uso y la Política de privacidad
Inmuebles similares:
 
157.000 €
Ref. 1641  92 m2  3  2
Piso en venta en Segur De Calafell, con 92 m2, 3 habitaciones y 2 baños, 3 plazas de Garaje, Trastero, Amueblado y Calefacción Bomba de calor.
 
169.500 €
Ref. 1529  67 m2  2  1
Piso en venta en Segur De Calafell, con 67 m2 y 2 habitaciones y 1 baños.
Inmobiliaria en Segur de Calafell
REGISTRE D'AGENTS IMMOBILIARIS DE CATALUNYA 3689

CONTÁCTANOS

Passeig Marítim 233-234 Baixos
43882 Segur de Calafell